
遊・OGAWAYA
千葉県長生郡長南町長南2425番地
お気に入りへ登録
KEY POINTの詳細
2025年11月に新規オープン。築150年の古民家を全面改修した一棟貸し民泊施設です。
建物は古民家の趣を残しつつ設備は最新とし、モダンレトロな施設に仕上げました。
都心から車で1時間。観光地とは一味違う田舎の古民家民泊で、ご家族やご友人の方々との穏やかなひとときをお過ごしください。
LDKや和室からは大きな窓越しに日本庭園がご覧になれます。
お爺ちゃん・お婆ちゃん、お子様夫婦、お孫さん達の3世代で。
ママ友同士が一緒に。ゴルフや麻雀を楽しむ熟年世代で。若い人達がグループで。
あちこちに遊び心を設けました。
【一棟貸し切り料金:税込】
定員6名様で、4名様までは同一料金でご利用になれます。寝具をご利用にならない6歳未満のお子様は無料です。
□平日1泊2日料金
4名様まで:¥44,000
5名様:¥51,900
6名様:¥59,800
□土曜日・祝前日1泊2日料金
4名様まで:¥52,800
5名様:¥61,300
6名様:¥69,800
□年末年始・ゴールデンウィーク・お盆1泊2日料金
4名様まで:¥57,200
5名様:¥66,200
6名様:¥75,200
【オプションご利用料金:税込】
□BBQ設備ご利用料金
1回当たり¥3,000
□全自動麻雀卓ご利用料金
1回当たり¥2,500
□薪ストーブご利用料金
1回当たり¥2,500
※オプションご利用ご希望の場合、予約時にその旨ご連絡ください。
【お支払い方法】
□お支払いはクレジットカードによる100%事前決済のみとさせていただいております。
□ご利用日の14日前までにお支払いください。
□現地決済は受け付けておりませんのでご注意ください。
キャンセル料
□ご予約以降キャンセルご希望のお客様はメールでご連絡ください。
□キャンセル料はご利用の10日前より発生しますのでご注意ください。
10日前から5日前まで:50%
4日前から2日前まで:70%
前日~当日:100%
見積り例(定員時)
施設が公開している見積り例です。宿泊日・人数・プランによっては料金が異なります。料金は税込・管理費込。
□敷地面積は約600坪。建物西側の庭の先には広大な裏庭と竹林があります
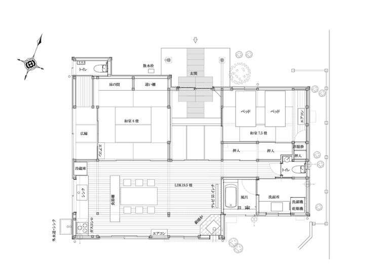
□建物は一棟貸しの2LDK平屋です。和室8畳に布団4組 和室7.5畳にベッド2台 LDK19.5畳 浴室 洗面所 トイレは2カ所あります
□定員は大人6名様まで
□駐車場は6台まで可
届出:第M120057109号
□設備(無料)
エアコン(全居室) バス 洗面所 洗濯機 ガス乾燥機 ウォッシュレットトイレ2カ所 4Kテレビ 無料WiFi
□キッチン設備(無料)
ガスコンロ コンロ連動換気扇 IH炊飯器 冷蔵庫 電子レンジ アラジントースター 電気ポット はかり 分別ゴミ箱4個
□調理器具(無料)
フライパン大小 鍋大小 ザル まな板 包丁 お玉 トング 菜箸 ピーラー ワインオープナー 栓抜き 計量カップ ふきん類 調味料一式
□食器類6名様分(無料)
お皿和洋大小各サイズ どんぶり お椀 急須 湯飲み コップ ワイングラス 箸 スプーン フォーク
□アメニティ(無料)
シャンプー リンス ボディーソープ バスタオル フェイスタオル バスマット Refaドライヤー 洗濯洗剤
※洗面用具、パジャマはご持参ください
□有料設備
1.薪ストーブ:1泊当たり薪代¥2,500 薪・着火剤とチャッカマンはご用意してあります
2.BBQ機器2セット(ガス式及び炭式):1回当たり¥3,000 必要な小物はご用意してあります
3.全自動麻雀卓:1回当たり¥2,500
実際に宿泊して良かった!という施設への応援メッセージを募集しております。
現在、情報がありません。
□最寄りのコンビニまで車で2分
□大型スーパー、ドラッグストア(食品、酒類も販売)まで車で10分
□近隣の多くのゴルフ場まで車で15分以内
□周辺の観光地
養老渓谷:車で25分
茂原公園:車で10分
笠森観音:車で5分
市原ぞうの国:車で15分
東京ドイツ村:圏央道経由車で25分
遊・OGAWAYA
千葉県長生郡長南町長南2425番地
□お車ご利用の場合
東京・横浜方面からアクアライン経由、圏央道「茂原長南IC」から2.5km 車で5分
成田空港、羽田空港より約1時間
□高速バスご利用の場合
東京駅・羽田空港・横浜駅より高速バス利用、長南町バス停まで約1時間、バス停より車で3分
□電車をご利用の場合
東京駅よりJR外房線の特急わかしおで約1時間、茂原駅下車。茂原駅より車で15分
駐車場: 6台